Piła, Górne

Lokal na wynajem

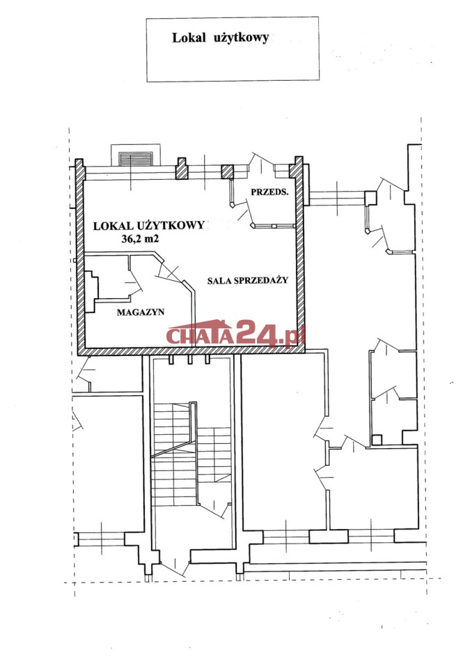
Opis nieruchomości

Atrakcyjny lokal użytkowy z przeznaczeniem handlowo- usługowym lub biurowym, w bardzo ruchliwej części osiedla Górnego w Pile.
Nowsze budownictwo.

Lokal o pow. 36,20 m2, znajduje się przy głównej ulicy w okolicach przystanku komunikacji miejskiej oraz parkingu.

Opis:
  • Sala główna o pow. 28 m2
  • Magazyn o pow. 5 m2
  • WC o pow. 1,20 m2
  • Wiatrołap o pow. 2 m2


Lokal ustawny, przestronny z dużą witryną wystawową.

W całym lokalu na podłodze terakota. Ściany gipsowane- malowane

Ogrzewanie gazowe z własnego kotła gazowego 2-funkcyjnego.

Miesięczne koszty utrzymania:

  • 1.700,00 zł czynsz najmu
  • 400 zł czynsz administracyjny (w tym zaliczka na wodę)
  • jednomiesięczna (zwrotna) kaucja zabezpieczająca
  • prąd, gaz, woda  według zużycia + wywóz śmieci



POLECAM!

Nota prawna

Opis oferty zawarty na stronie internetowej sporządzany jest na podstawie oględzin nieruchomości oraz informacji uzyskanych od właściciela, może podlegać aktualizacji i nie stanowi oferty określonej w art. 66 i następnych K.C.

Szczegóły oferty

Symbol oferty CHA-LW-4588
Powierzchnia 36,20 m²
Powierzchnia użytkowa 36,20 m²
Piętro parter
Rodzaj budynku blok
Standard
Opłaty w czynszu administracja, woda/ryczałt na wodę, zaliczka na fundusz remontowy
Opłaty wg liczników gaz, prąd
Stan lokalu do wprowadzenia
Stan prawny SPÓŁDZIELCZE WŁASNOŚCIOWE Z KW
Typ kaucji jednomiesięczna
Okna PCV
Rodzaj lokalu jednopoziomowy
Przeznaczenie lokalu biurowy, handlowo-usługowy, handlowy, usługowy
Dojazd asfalt
Ogrzewanie piec dwufunkcyjny
Usytuowanie dwustronne
Możliwość parkowania tak
Położenie lokalu ruchliwa ulica
Witryna wystawowa duża
Wejście od ulicy
Podłogi terakota

Napisz do nas

Proszę wypełnić to pole
Proszę wypełnić to pole
Proszę wypełnić to pole
Proszę wypełnić to pole
Trwa wysyłanie...

Ta strona wykorzystuje pliki cookies w celach statystycznych oraz w celu dostosowania naszych serwisów do indywidualnych potrzeb klientów. Zmiany ustawień dotyczących plików cookie można dokonać w dowolnej chwili modyfikując ustawienia przeglądarki. Korzystanie z tej strony bez zmian ustawień dotyczących cookies oznacza, że będą one zapisane w pamięci urządzenia.

rozumiem