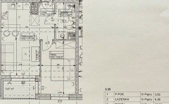
Przytulne i funkcjonalne mieszkanie o powierzchni 37,95 m², położone na 3. piętrze nowoczesnego budynku z windą. Składa się z:
Salon z aneksem kuchennym: 17,71 m²
Sypialnia: 12,06 m²
Łazienka: 4,36 m²
Holl: 3,82 m²
Balkon: 3,67 m²
Dodatkowo do mieszkania przynależy:
Komórka lokatorska: 2,30 m² – na tym samym piętrze
Prywatne miejsce postojowe
Dostęp do wózkarni/rowerowni na parterze
Budynek z windą (od parteru do 3. piętra)
System automatyki mieszkaniowej APPARTME – sterowanie komfortem z poziomu aplikacji
Ogrzewanie miejskie (MEC)
Gotowe do zamieszkania lub jako inwestycja na wynajem
Możliwość parkowania dla gości
Lokalizacja: Cicha, spokojna okolica z doskonałym dostępem do infrastruktury. W pobliżu:
Szkoła Podstawowa
Akademia Nauk Stosowanych im. S. Staszica
Aquapark
Siłownia, sklepy i tereny zielone
Dobra komunikacja miejska.
Mieszkanie idealne dla singla, pary, młodej rodziny lub inwestora szukającego gotowca inwestycyjnego.
Zapraszam do kontaktu oraz na prezentację!



